Biệt thự tân cổ điển 3 tầng 11x12m lựa chọn hoàn hảo cho các gia đình
Mẫu thiết kế biệt thự tân cổ điển 3 tầng 11x12m được xem là một trong những công trình nhà ở lý tưởng cho nhiều gia đình hiện nay kể cả ngoại thành hay nội đô. Sở dĩ mẫu nhà này được yêu chuộng vì phù hợp với quỹ đất, đáp ứng được không gian sinh hoạt của gia đình nhiều thế hệ và đặc biệt nhất là biệt thự 3 tầng tân cổ điển thể hiện đẳng cấp, gu thẩm mỹ của gia chủ.
Để hiểu vì sao mẫu biệt thự tân cổ điển 3 tầng 11x12m lại được yêu chuộng đến thế hãy cùng chúng tôi ngắm nhìn vẻ đẹp của công trình kiến trúc dưới đây nhé.
Phối cảnh ngoại thất biệt thự tân cổ điển 3 tầng 11x12m
Điểm đắt giá giúp mẫu thiết kế biệt thự tân cổ điển 3 tầng 11x12m ghi đậm dấu ấn trong lòng gia chủ và người nhìn chính là vẻ đẹp không trùng lặp. Biệt thự được kết hợp khéo léo giữa kiến trúc tân cổ điển nhẹ nhàng cùng với mái thái có tính ứng dụng cao.
Sự hòa quyện ăn ý giữa 2 luồng kiến trúc này đã giúp biệt thự 3 tầng đạt đến hoàn mỹ từng góc cạnh và phù hợp với bối cảnh, không gian xung quanh.
Biệt thự tân cổ điển 11x12m 3 tầng tối ưu những hoa văn tạo điểm nhấn riêng bằng những đường chỉ cộng hưởng thêm thức cột vuông, trụ cột tròn đậm nét tân cổ điển được bố trí xuyên suốt ở mặt tiền cũng như hệ cổng, tường rào bao quanh.
Các ứng dụng chất liệu hiện đại như của kính giúp biệt thự vừa sang trọng vừa đón ánh sáng thiên nhiên từ bên ngoài vào trong dễ dàng.
Không cần sử dụng sắc màu quá rực rỡ biệt thự tân cổ điển vẫn nổi bật trên một cung đường. Gam màu trắng nhẹ nhàng kết hợp hài hòa cùng gam màu xám, bên ngoài là sắc màu vàng kết hợp.
Để biệt thự thêm ấn tượng, kiến trúc sư đã sử dụng mái thái màu xanh. Đây là gam màu đối lập với những khoảng tường, thức cột nhưng khi kết hợp lại có sức hút kì lạ.
Không phải mái bằng hay mái Mansard hay mái vòm mà kiến trúc sư lại chọn mái thái để làm mảnh ghép cuối cùng cho ngôi nhà. Mái mansard được thiết kế độ dốc lớn, vạt mái dài giúp thoát nước tốt hạn chế tù đọng vào mùa mưa. Không chỉ có tính ứng dụng cao mà loại mái này còn còn mang đến sự thân thuộc và phù hợp với khung cảnh làng quê yên bình.
Bản vẽ mặt bằng biệt thự tân cổ điển 3 tầng mặt tiền 11m
Để đảm bảo một không gian sống tiện nghi thì việc sắp xếp phân chia mặt bằng rất quan trọng và dưới đây là bản vẽ mặt bằng mẫu biệt thự đẹp, mặt tiền 11m.
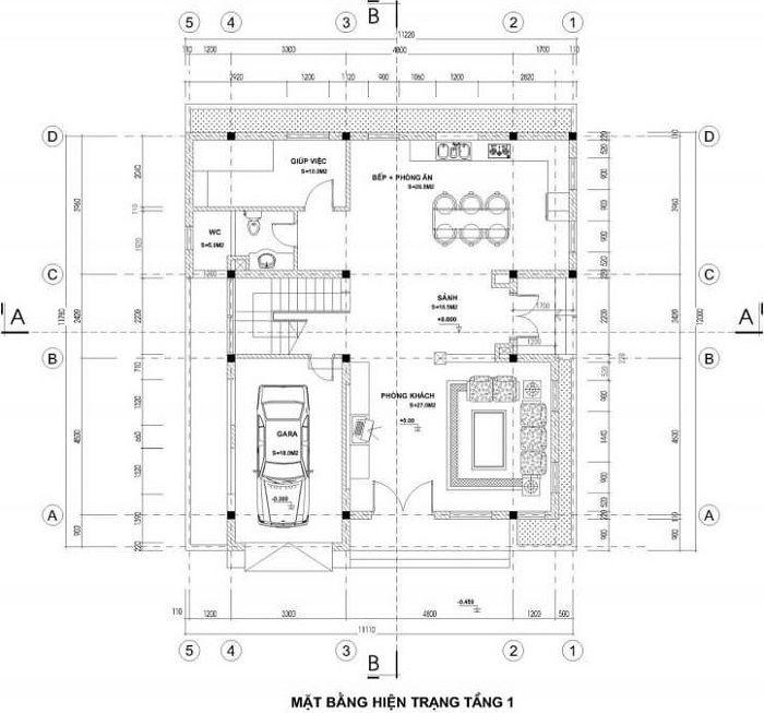
Bản vẽ mặt bằng tầng trệt biệt thự tân cổ điển 3 tầng 11x12m
Tầng trệt gồm: Phòng khách, gara để xe, bếp + phòng ăn, phòng giúp việc, WC
- Thay vì xây dựng tầng hầm việc thiết kế gara để xe ở tầng trệt nhằm tiết kiệm chi phí xây dựng một cách tối đa nhưng vẫn đảm bảo thẩm mỹ và công năng sử dụng.
- Bên cạnh đó khu vực sảnh và phòng khách rộng thoáng được kết nối với nhau với không gian mở. Cách bố trí mặt bằng này giúp quá trình lưu thông không khí được dễ dàng.
- Bếp và phòng ăn cũng được nối liền với khu vực sảnh đặc biệt bên hông có cửa phụ bên ngoài.
- Phòng ngủ giúp việc diện tích nhỏ nhưng đảm bảo thông thoáng, WC chung được bố trí dưới tầng trệt đảm bảo sự riêng tư nhất định.
Bản vẽ mặt bằng lầu 1
Lầu 1 gồm: Phòng sinh hoạt chung, 2 phòng ngủ
- Trên lầu 1 gồm có một phòng sinh hoạt chung được bố trí bộ bàn ghế như một phòng khách cung cấp không gian thư giãn, sum họp nhằm tăng tính liên kết giữa các thành viên trong gia đình.
- 2 Phòng ngủ sở hữu diện tích rộng rãi, mỗi phòng đều được sắp xếp nội thất gọn gàng. Đặc biệt một phong ngủ lớn có phòng làm việc bên trong nhằm mang đến sự yên tĩnh
Bản vẽ mặt bằng lầu 2
Lầu 2 gồm: Phòng thờ, 2 phòng ngủ, sảnh tầng, WC, sân phơi
- Phòng thờ được bố trí trên lầu 2 nhằm đảm bảo sự thông thoáng, yên tĩnh phù hợp với phong thủy, bên cạnh đó căn phòng còn được bố trí nội thất như bàn thờ, ghế phù hợp.
- 2 Phòng ngủ với WC bên ngoài nhằm tối ưu không gian nội thất bên trong mang đến không gian phòng ngủ rộng rãi thoáng đãng và mát mẻ.
- Khu vực sân phơi cũng như ban công bên ngoài rộng rãi thông thoáng
Thiết kế nội thất biệt thự 3 tầng 11x12m tân cổ điển đẹp
Đi cùng với vẻ đẹp nhẹ nhàng tinh tế, bên trong biệt thự 3 tầng 11x12m phong cách tân cổ điển cũng được thiết kế nội thất vô cùng sang trọng mang đến một không gian thư giãn, nghỉ ngơi vô cùng thoải mái.
Thiết kế nội thất phòng khách biệt thự tân cổ điển 3 tầng 11x12m
Bước vào không gian phòng khách cảm nhận được vẻ đẹp nhẹ nhàng nhờ sơn tường màu trắng kết hợp thêm những giấy dán tường họa tiết nhẹ hay những mảng tường được ốp đá cao cấp sắc màu đồng điệu.
Việc tối giản những hoa văn phù điêu nặng nề thay vào đó là những đường gờ, phào chỉ nhẹ để tạo điểm nhấn trên tường giúp không gian thông thoáng hơn.
Bộ bàn ghế bọc nệm sofa cao cấp với khung gỗ được uốn cong một cách khéo léo, màu sắc của ghế nhẹ với những điểm nhấn nút mang đến sự êm ái cho người sử dụng.
Bên dưới là thảm trải sàn họa tiết sang trọng, bức tranh nghệ thuật cùng ánh sáng thiên nhiên chiếu rọi vào phòng mang đến không gian sum họp tiếp khách ấm áp.
Thiết kế nội thất phòng ăn
Tủ bếp màu trắng mang nét đặc trưng của những công trình biệt thự tân cổ điển châu âu. Tủ bếp sắc trắng nhẹ nhàng điểm thêm những đường gờ, phào chỉ tinh tế cộng hưởng thêm họa tiết thiên nhiên được kết hợp ở giữa tủ bếp.
Trong khi đó bộ bàn ghế ăn tân cổ điển màu trắng và họa tiết nhẹ, ở dưới được sử dụng thảm trải sàn tăng thêm vẻ đẹp đẳng cấp cho biệt thự 3 tầng 11x12m.
Việc thiết kế tủ bếp ôm sát trần đảm bảo thẩm mỹ và tăng diện tích để đồ, sắp xếp những vật dụng một cách gọn gàng, ngăn nắp.
Nếu như trước kia thì phòng tắm ít khi để ý vì cho rằng nó không quan trọng và chiếm diện tích nhỏ nhưng hiện nay thì lại khác. Để khẳng định được đẳng cấp của biệt thự thì thiết kế phòng tắm như thế nào rất được gia chủ quan tâm.
Hiểu được điều đó ở biệt thự tân cổ điển 11x12m 3 tầng kiến trúc sư đã rất quan tâm và mang đến một phòng tắm đẹp, sang trọng với phòng tắm kính, bức tường được ốp đá cao cấp kết hợp cùng nội thất tiện nghi và không gian thông thoáng.
Một không gian thoáng đãng sang trọng giúp các thành viên trong gia đình có thể thư giãn, tắm mát sau những ngày dài làm việc mệt mỏi.
Thiết kế nội thất phòng ngủ
Thiết kế nội thất phòng ngủ sang trọng đẳng cấp đậm chất tân cổ điển, căn phòng được sắp xếp nội thất gọn gàng, sử dụng sắc màu nhẹ nhàng tạo nhã tạo cảm giác mát dịu khi nhìn vào.
Ngoài một chiếc giường ngủ bọc nệm êm ái thì căn phòng còn sở hữu bộ bàn ghế sofa bọc nệm họa tiết giúp chủ nhân trong phòng có thể thư giãn và ngắm nhìn thiên nhiên bên ngoài.
Vừa sở hữu vẻ đẹp sang trọng, phòng ngủ biệt thự tân cổ điển 11x12m vừa sở hữu không gian lãng mạn để giúp tình cảm vợ chồng thêm thăng hoa.
Hy vọng với những hình ảnh thiết kế biệt thự tân cổ điển 3 tầng 11x12m trên sẽ giúp các gia chủ có thêm ý tưởng. Nếu bạn cũng yêu thích mẫu biệt thự độc đáo này thì hãy liên hệ tới kiến trúc xây dựng eurohomes qua hotline 0973.556.236 để được tư vấn miễn phí nhé.
Nguồn ảnh internet.
























